STANOVANJSKA HIŠA ROŽMARIN

Rožmarin

ROŽMARIN 1
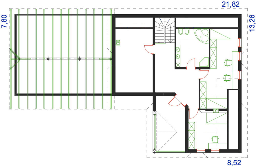
pritličje
PRITLIČJE
mansarda
MANSARDA

 

Rožmarin

 

SKUPNE KVADRATURE:

PRITLIČJE:     99,65 m2

MANSARDA:   93,49 m2

--------------------

SKUPAJ:   193,14 m2


ROŽMARIN 2

Rožmarin 2

PRITLIČJE

SKUPNE KVADRATURE:

PRITLIČJE: 118,21 m2

GARAŽA:   57,60 m2

ROŽMARIN 3
pritličje
PRITLIČJE
mansarda
MANSARDA
 

 

SKUPNE KVADRATURE:

PRITLIČJE:     177,22 m2

MANSARDA:   96,75 m2

-------------------------

SKUPAJ:   273,97 m2

 


Acrobat reader PDF datoteka

ZRCALNI OBJEKT